Church Road, Churchdown, Gloucester

For Sale £575,000

4 2 2
A beautifully presented four-bedroom townhouse in the heart of Churchdown Village!

Situated in a highly sought-after central village location, this attractive and spacious four-bedroom home offers versatile accommodation set across three floors, ideal for modern family living.

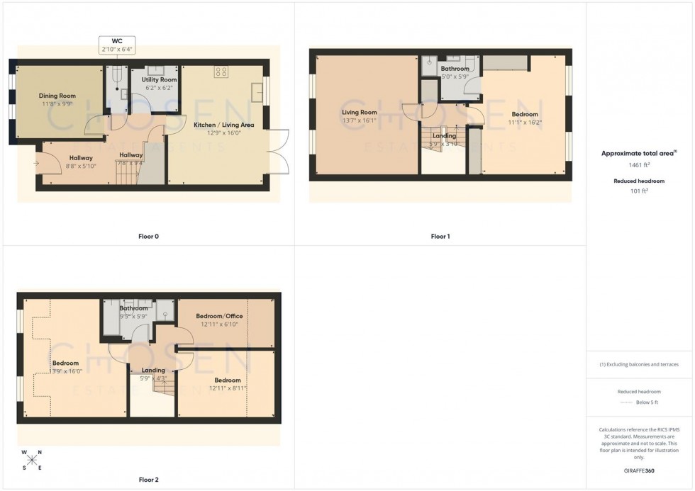
Upon entering, the ground floor comprises a welcoming hallway leading to a generously sized kitchen/living area, thoughtfully designed as the hub of the home with ample space for both cooking and everyday living. To the rear, a separate dining room provides an excellent space for entertaining, complemented by a useful utility room and downstairs WC.

The first floor features a bright and spacious living room, perfect for relaxing, alongside a well-proportioned master bedroom and en-suite. The second floor offers three further bedrooms with excellent proportions, as well as an additional bathroom, making this home ideal for growing families or those needing flexible work-from-home space.

Externally, the property benefits from a beautifully maintained rear garden, designed for low maintenance and outdoor enjoyment, with a combination of patio seating areas and lawn. To the front, the home enjoys an attractive setting with a driveway leading to a garage, providing ample parking and storage.

Further benefits include a charming façade, generous overall living space, EV charge point, and a prime position within easy reach of local amenities, well-regarded schools, and transport links.

Agents Note.

Freehold
EPC Rating: TBC
Tewkesbury Borough Council Band: D
Mains Gas, Electric and Water are connected.

Flood Risk:
Rivers & Seas - Very Low.
Surface Water - High.

  • Four Bedroom Home Arranged Over Three Floors
  • Beautiful Kitchen/Living Area With Separate Dining Room
  • Privately Enclosed Rear Garden
  • Incredibly Sought After Village Location
  • Garage And two Off Road Parking Spaces
  • Ground Floor WC, En-Suite On First Floor And Family Bathroom On Second Floor
  • EPC Rating: TBC
  • Council Tax Band: D
Floorplan for Church Road, Churchdown, Gloucester
Similar Properties

Book a valuation

Find out how much your property is worth